Automatic Glass Sheet Packaging Line
Automatic packaging machine for packaging stacked glass sheets with strap and film
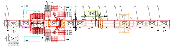
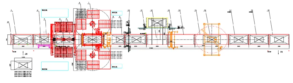
The automatic glass sheet packaging line is designed to provide fully automated packaging for stacked glass after deep processing. The system performs all essential packaging operations, including automatic placement of corner protectors, side boards, and top plates; horizontal and side strapping; application of top film; and four-sided stretch wrapping. This ensures stability, protection, and efficiency in packaging, readying glass sheets for safe handling, storage, and transport.
- Glass type: Ultra-clear rolled photovoltaic glass
- Packaging speed: ≤150s/stack
- Max. glass sheet size: 2600×1500mm
- Stacking height: 300-650mm
- Load bearing capacity: ≥3.5t
- Pallet type: Wooden pallet, metal pallet
- Strapping force: 50-5000N
- Strapping band size: 19×1mm or 16×0.8mm
- Edge board/corner protector: Can support 3 specifications simultaneously
- Partition board insertion: Automatic
Product Details
Automatic corner protector placement
Customizable strapping system (Compatible with two strap sizes: 19mm × 1mm and 16mm × 0.8mm)
Places protective top film across the stack using an advanced through-type film system, reducing static interference and improving film success rate




